熱門資訊 / NEWS
- 12-16· 懸輥機的工作原理及設計制造
- 12-16· 如何確定適用于懸輥機的混凝
- 10-23· 水泥管模具開、合模作業(yè)指導
- 02-25· 提高水泥電桿產品質量的措施
- 12-16· 水泥井管模具的使用與保養(yǎng)
- 12-16· 重慶建成4300公里排水管網
推薦水泥制管機 / PRODUCTS
您當前位置:山東海煜重工有限公司 > 新聞中心 > 技術資料 >
技術資料
無砂濾水管振動臺的設計與制造
時間:2014-12-16 08:08 來源:qzhaiyu.com 作者:海煜重工 點擊: 次
|
振動臺設計思路是利用振動臺產生的激振力使物料運動,利用物料慣性達到密實效果。振動臺系統(tǒng)包括振動質體、彈簧和慣性激振器三個基本部分。振動類型有圓振動、橢圓振動、直線振動。直線振動運動軌跡是直線,其密實效果最優(yōu),故作為首選。振動臺的直線振動是靠兩根帶偏心塊的主軸作同步反向旋轉而產生直線振動。
振動臺工作原理如圖1所示。兩偏心塊質量m1=m2,F1=F2=F,偏心塊作同步反向回轉,在各瞬時位置中離心力沿K向(振動方向)的分力總是疊加,而與K向相垂直的方向,離心力的分力總是互相抵消。因此,形成了單一的沿K向的激振力,驅動振動臺做直線運動。 ![]() 圖1 振動臺工作原理圖
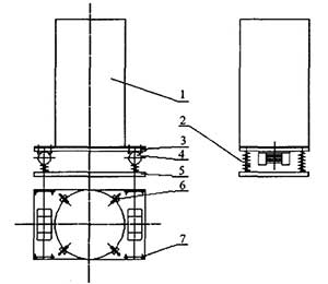
振動臺設計方案見圖2。
![]() 圖2 振動臺 1. 制作貼礫管模具 2. 隔震彈簧 3. 振動臺面板 4. 激振電機 5. 振動臺底座 6. 模具固定裝置 7. 振動臺加固螺栓
1 激振電機選型
首先計算出加工貼礫濾水管時需激振的整體重量,而后根據激振力的大小選擇激振電機。需激振的整體重量如下: 1.1 貼礫管襯管,為PVC—U管材,外徑Φ80mm,單根長2000mm,重約140kg; 1.2 貼礫層厚度30mm,貼礫層高度1600mm,礫層約重150kg; 1.3 每單根使用粘合劑約20kg; 1.4 無砂管模具重約220kg; 1.5 振動平臺約重210kg; 1.6 激振電機重量2×34.5kg。 加工制作貼礫濾水管時需激振的整體重量為襯管重量、貼礫層重量、模具重量、振動平臺重量和振動電機重量之和,等于809kg。 激振電機選擇為:MVE400/1,參數:激振力408kg,功率0.25kw,電流0.78A,頻次960r/min,機座號 50A。MVE400/1兩臺激振力為816kg≥809kg,考慮加工制作時,貼礫層重量是逐步增加,所以選擇MVE400/1作為三相振動電機作為激振電機。 2 振動臺隔震彈簧設計 振動臺必須有隔振彈簧,否則巨大的激振力使地基無法承受,振動臺也無法工作。選擇一個合適恰當的彈簧剛度,既減少傳給地基的動力,又能支撐振動臺。 彈簧自由高度與彈簧座高度要大于振動電機的高度與振動臺最大振動幅度之和400mm。彈簧座高度為10mm,故彈簧自由高度應該大于300mm。 3 振動臺面板及彈簧導向柱設計 振動臺臺面設計主要考慮滿足強度要求和表面光滑。振動臺材料采用4根1O號熱軋普通槽鋼和厚度為10mm鋼板。加工時首先將兩端300mm寬的底板焊牢,而后焊接1600×1000mm的面板,再用8條M20螺栓緊固面板與底板。以防止長期振動造成焊接部位開裂。結構設計見圖3。 ![]() 圖3 振動臺面板
振動臺導向柱的作用是防止啟動和停止時產生的共振引起的模具晃動。采用大直徑圓管和小直徑圓管組合而成,小直徑圓管與振動臺面板固定,大直徑的圓管與底座固定。
4 振動臺使用及效果 此次要加工的貼礫管襯管為單根長2000mm、外徑Φ800mm PVC—U管材,貼礫層厚度30mm,貼礫層高度1600mm。 振動臺使用時,把它安裝在長2000mm,寬1400mm的坑里,振動臺面板與地面平齊。把模具和襯管固定在振動 臺面板上,并控制好襯管和模具之間的環(huán)狀間隙。這樣就可以向環(huán)狀間隙充填混好粘合劑的礫料了。 振動臺加工完成后,立即投入了使用,并在使用過程中進行完善。振動臺的使用大大提高了加工速度,比人工提高約3倍以上,而且加工質量有明顯提高。用人工充填密實的貼礫濾水管,表面有明顯波紋,密實均勻性差。使 用振動臺后,質量有所提高,上述問題均得到解決。 |



300-600×4000水泥管離心成
1200-1800×2000水泥管成型
1500-2000×2000懸輥機
500-1000×3000懸輥式水泥制
300-600×3000離心式水泥制
300-600×2000離心式水泥制

